Date de vente
24.3.2026
Catégorie de bien
Appartement
Valeur estimée
CHF 1'200'000.-
Standort
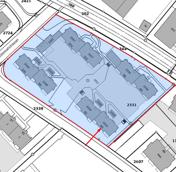
Hardstrasse 90 5432 Neuenhof, AG
Enchères
- Date de vente
- Mardi, 24. mars 2026
- Chronologique
- 14:00 heures
- Localisation
- Peterskeller, Zürcherstrasse 89, 5432 Neuenhof
Parcelle
- Numéro de propriété:
- 73, 74
- Parcelle maîtresse:
- 2331
- Cadastre:
- Neuenhof
- Lien vers carte:
- GIS- Canton de- AG
Propriétés
- Numero di camere:
- 5½
- Etage:
- au grenier
- Surface utile:
- 140 m2
- Année de construction:
- 1996
- Places de parking souterraines:
- 4
Les valeurs
- Estimation officielle:
- CHF 1'200'000.-
- Offre minimale:
- CHF 1.-
- Acompte:
- CHF 100'000.-
Plus de détails et autres enchères
Sur AuctionHome.ch, vous trouverez plus de détails sur cette vente aux enchères et sur toutes les ventes aux enchères de biens immobiliers de bureaux de faillite et de recouvrement de créances en SuisseAfficher toutes les ventes aux enchères de biens immobiliers
Bureau compétent
Betreibungsamt NeuenhofZürcherstrasse 107
5432 Neuenhof
Neuenhof AG
(wikipedia.org)
| Neuenhof | |
|---|---|
| Staat: | |
| Kanton: | |
| Bezirk: | Baden |
| BFS-Nr.: | 4034 |
| Postleitzahl: | 5432 |
| Koordinaten: | 667120 / 255303 |
| Höhe: | 412 m ü. M. |
| Höhenbereich: | 357–702 m ü. M.[1] |
| Fläche: | 5,38 km²[2] |
| Einwohner: | 9212 (31. Dezember 2024)[3] |
| Einwohnerdichte: | 1712 Einw. pro km² |
| Ausländeranteil: (Einwohner ohne Schweizer Bürgerrecht) |
52,5 % (31. Dezember 2024)[4] |
| Gemeindeammann: | Martin Uebelhart |
| Website: | www.neuenhof.ch |
Sicht von Wettingen über die Limmat auf Neuenhof
| |
| Lage der Gemeinde | |
Dénégation de responsabilité
Tout le contenu est fourni à titre d'information seulement et aucune déclaration ou garantie n'est faite quant à son exactitude ou son intégralité. Les descriptions de propriété, les documents et les images peuvent ne pas décrire exactement la propriété. Nous vous encourageons à faire preuve de diligence raisonnable et à demander l'avis d'un professionnel indépendant au besoin.
Ces données proviennent du portail du Journal officiel (shab.ch). Ceci n'est pas une publication officielle. Les données figurant dans le portail du Journal officiel et pourvues d'une signature électronique ou d'un sceau par le SECO font foi.
Ces données proviennent du portail du Journal officiel (shab.ch). Ceci n'est pas une publication officielle. Les données figurant dans le portail du Journal officiel et pourvues d'une signature électronique ou d'un sceau par le SECO font foi.

